ARCHITECTURE

URBANISME

DESIGN

AGENCE

EQUIPE

MON PROJET

CONTACT

RÉNOVATION

BOLLEVILLE

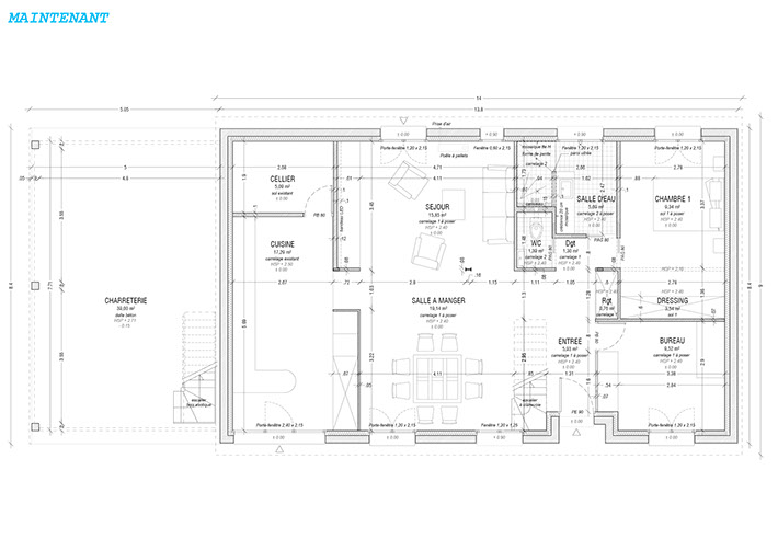
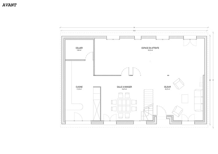
RÉNOVATION ET EXTENSION D'UNE MAISON INDIVIDUELLE

 

Cette opération située à Bolleville en Seine-Maritime concerne la rénovation tant esthétique que thermique d’un pavillon datant d’une quinzaine d’année. Le projet consiste à repenser entièrement l’agencement intérieur pour s’affranchir au maximum des cloisons et d’ouvrir l’espace aux lieux de vie les plus usités. Une extension est également prévue sous forme de charreterie dans le prolongement du pignon Nord, reprenant le langage général du quartier, mais rompant avec la monotonie formelle de l’habitation existante. Avec des descentes de réseaux et des descentes de charges sur des poteaux, les contraintes à prendre en compte sont nombreuses, mais le projet a su tirer parti des différents éléments pour fournir un environnement aux inspirations industrielles, originales et résolument contemporaines. Pour autant, la performance thermique n’a pas été négligée. Véritable talon d’Achille de cette construction bon marché, elle a été entièrement revue en termes d’isolation, d’infiltrométrie et renouvellement d’air.

INFORMATIONS

 

Localité:

Rue Nationale

Bolleville [76]

 

Calendrier:

Chantier en cours

Livraison prévue pour 2016

 

Mission:

Maitrise d’œuvre

 

Maitrise d’ouvrage:

[privée]

 

Maitrise d’œuvre:

+ PĀNK architectures

[Architectes – Urbanistes]

 

Superficie:

[SP] 180 m²