ARCHITECTURE

URBANISME

DESIGN

AGENCE

EQUIPE

MON PROJET

CONTACT

GRAND STADE T3

INFORMATIONS

 

Localité:

Décines-Charpieu

Rhône-Alpes [69]

 

Calendrier:

Chantier en cours

Livraison prévue pour 2015

 

Mission:

Maitrise d’œuvre

 

Maitrise d’ouvrage:

[publique] SYTRAL

 

Maitrise d’œuvre:

+ Paul Nadreau

[Architecte – Urbaniste]

+ Setec [BET Mandataire]

+ Systra [BET]

 

Superficie:

[SHON] 400 m²

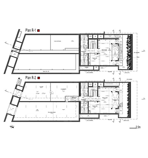
LOCAL D'EXPLOITATION POUR LA LIGNE T3 VERS LE GRAND STADE À DÉCINES-CHARPIEU

 

Conçu dans le cadre du projet du Grand Stade de Lyon et du prolongement de la ligne de tramway T3, ce bâtiment accueille le Poste de Manœuvre Local (PML) et la salle de repos des conducteurs ; il est par ailleurs attenant au parc créé par Atelier de Ville en Ville. Le volume proposé allie élégance et simplicité en privilégiant une insertion délicate entre les voies du tramway. Compact, le bâtiment se déploie sur trois niveaux dont deux enterrés. Cette caractéristique permet de l’inscrire au mieux dans son cadre d’implantation en optant pour la minimisation de son impact visuel. L’enveloppe en résille métallique d’inspiration végétale encadrant le bâti participe à ce souci de discrétion. Les deux niveaux enterrés permettent également de bénéficier de performances thermiques importantes et d’une optimisation des coûts de réalisation. Le parti pris structurel s’attache à rationnaliser les éléments techniques permettant ainsi d’inscrire le projet dans une démarche durable et de garantir la pratique d’une spatialité hautement fonctionnelle.