ARCHITECTURE

URBANISME

DESIGN

AGENCE

EQUIPE

MON PROJET

CONTACT

PARIS XI

LOGEMENT

INFORMATIONS

 

Localité:

Rue de Nice

Paris XI [75]

 

Calendrier:

Chantier en cours

Livraison prévue pour 2015

 

Mission:

Maitrise d’œuvre

 

Maitrise d’ouvrage:

[privée]

 

Maitrise d’œuvre:

[Mandataire]

+ Paul Nadreau chef de projet

[Architecte – Urbaniste]

 

Superficie:

[SHON] 80 m²

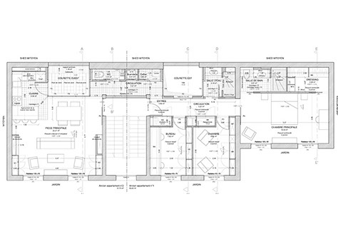
RÉUNION ET RÉAMÉNAGEMENT DE DEUX APPARTEMENTS RUE DE NICE À PARIS

 

Situé dans le XIe arrondissement de Paris, le projet concerne la réunion et le réaménagement de deux appartements connexes d'une surface d'environ 30 et 50 m². La liaison est réalisée par les deux salles de bain existantes. L'organisation des appartements a totalement été repensée en réarticulant les lieux à partager et redistribuant l'espace. Par la même, les différents réseaux ont été repris pour adapter un nouveau circuit d'électricité et de chauffage plus économe. Une longue perspective a été pensée à travers les courettes "puits de lumière" agrémentant la circulation de cette composition singulière. La conception comprenait la création de plusieurs mobiliers de rangements sur mesure : bibliothèque, bureau, dressing... Des références de mobilier seront proposées pour la future décoration intérieure. Un travail de mise en lumière a été imaginé afin de créer des ambiances lumineuses adaptées aux divers espaces et usages. Le projet vient créer un lien avec une des courettes lui offrant une accessibilité et un développement paysager.